
土地1330.02㎡(402坪)
居宅116.12㎡(35.12坪)
納屋66.10㎡(19.99坪)
・昔ながらの農家住宅エリア
・広い敷地に古家と納屋付き。
・都市ガス、集落排水利用可。
・現在片付け中。
居宅116.12㎡(35.12坪)
納屋66.10㎡(19.99坪)
・昔ながらの農家住宅エリア
・広い敷地に古家と納屋付き。
・都市ガス、集落排水利用可。
・現在片付け中。



※物件の所在地は明確に地図上で示していません。周辺環境の確認としてご利用ください。 現地視察をご希望の方は末尾のメールフォーム、またはお電話にて弊社までお問い合わせください。

生垣が立ち並ぶ住宅エリアの物件。

北・西道路に面した角地。

西道路の様子。敷地への入口があります。

物件の入口。

入口脇に小さな古小屋があります。

こちらが居宅。

築年不詳の古家となります。

居宅裏側(北道路から撮影)

都市ガス導入済みです。

排水は集落排水。

居宅内部。

とても散らかっているので現在片付け中。

居宅併設の納屋。

こちらも現在片付け中。

敷地の東端にある倉庫。こちらは取壊し予定。

内部の片付け中です。

敷地の南側にあるビニールハウスも解体・撤去予定。

現況は荒れています。

【まとめ】
本物件は広い敷地に古家と納屋がある物件で、敷地内には他に小さな古小屋や倉庫、ビニールハウスがありますが、倉庫とビニールハウスは取壊し予定です。
一宮の住宅エリアで広い土地物件をお探しの方にオススメです。別途農地もお付けできますので、農業を始めたい方はご相談ください。
| 所在地 | 千葉県一宮町一宮 (いちのみやまち いちのみや) | ||
|---|---|---|---|
| 交通 | JR外房線 上総一ノ宮駅より 1500m | ||
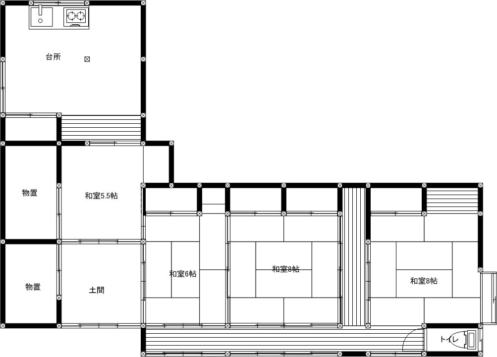
| 価格 | 2000万円 | 間取り | 5SDK (居宅) |
| 土地面積 | 1330.02㎡ (402坪) | 建物面積 | 居宅116.12㎡ (35.12坪) 納屋66.10㎡ (19.99坪) |
| 権利の種類 | 所有権 | 面積計測方式 | 公簿 |
| 都市計画 | 区域内 | 用途地域 | 無指定 |
| 建ぺい率 | 60% | 容積率 | 200% |
| 地目 | 宅地 | 築年 | 不詳(納屋は昭和44年築) |
| 現況 | 空家 | 引き渡し | 相談 |
| 取引態様 | 媒介(仲介) | 駐車場 | 駐車スペース有り |
| 接道状況 | 西側:幅4.3m公道に接する 北側:幅2.9m公道に接する | ||
| 設備 | 電気・都市ガス・井戸・集落排水(下水処理) | ||
| 備考 | |||